Výhody mobilního domku GARDEON
- Bez komplikované výstavby a náročných základů
- Do 50 m² bez stavebního povolení
- Nadstandardní výška stavby 3 m
- Rychlá montáž již za 1 den
- I po letech bez nutnosti natírání
- Dlouhá životnost bez kompromisů
Každý mobilní domek GARDEON ve stylu Tiny House navrhujeme a stavíme tak, aby spojoval maximální efektivitu s moderním designem a promyšleným stylem. Dbáme na to, aby každý model nabízel maximální stabilitu a trvanlivost a zároveň možnost komfortního přespání.
Díky tomu vám dodáme rychlé a spolehlivé řešení bez kompromisů, připravené k používání v rekordně krátkém čase. Celou realizaci zajišťujeme čistě a jednoduše – bez složité klasické výstavby či náročných základů. Ušetříme vám tak spoustu starostí a celý proces proběhne hladce od začátku až do konce.
Naše domky jsou maximálně všestranné. Ať už hledáte útulné rekreační bydlení, moderní zahradní office nebo stylový prodejní stánek, vždy jej přizpůsobíme vašim konkrétním potřebám. A pokud má domek plochu do 50 m², obejdete se dokonce i bez stavebního povolení.
Mobilní domek zrealizujeme rychle (za jeden den), bez nepořádku a pro vás bez starostí.
Jádro má nejvyšší třídu reakce na oheň pro organické izolace.
GARDEON® Thermopanely 60 mm a 102 mm s vynikajícími tepelně izolačními vlastnostmi.

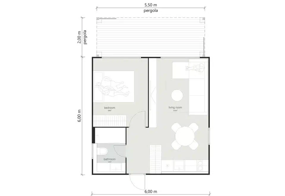
Náš nejmenší Tiny House s označením XS je určen pro ty, kteří nepotřebují velký prostor. Jen příjemné místo, kde mohou například pracovat, ubytovat návštěvu nebo přespat na zahradě.
Mobilní domek XS charakterizuje:
Zobrazený půdorys slouží pouze pro představu o dispozičním řešení a možném vybavení domku.


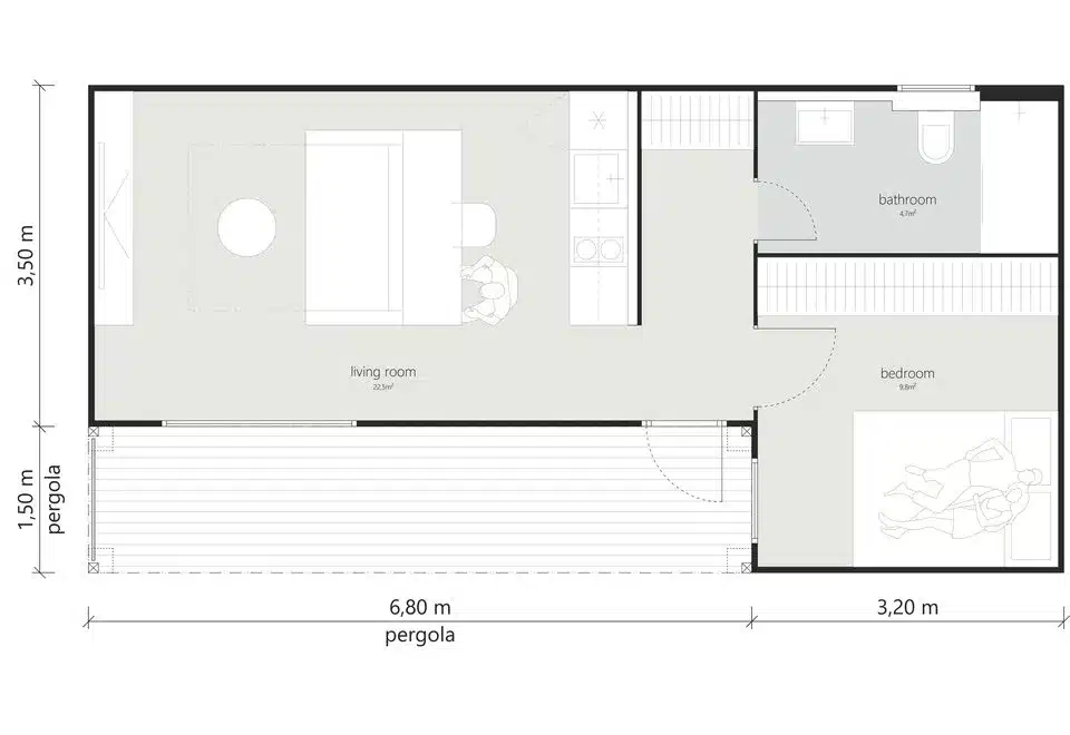
Čtvercový půdorys doplněný pergolou na celou šířku domečku Mini má různé praktické způsoby využití. Můžete si v něm zařídit víkendové bydlení, bufet, malou cukrárnu nebo jiný provoz se zázemím.
Mobilní domek Mini charakterizuje:
Zobrazený půdorys slouží pouze pro představu o dispozičním řešení a možném vybavení domku.

Mobilní domky stavíme ze sendvičových panelů s integrovanou tepelnou izolací, které mají oproti našim běžným Thermopanelům o polovinu hrubší tepelnou izolaci (tloušťka stěnového panelu je zde 60 mm oproti standardním 40 mm. V případě stropu je to 102 mm oproti standardním 82 mm). Tím se dosahují:
Součástí montovaného víkendového domku může být i přístřešek, který lze využívat například:

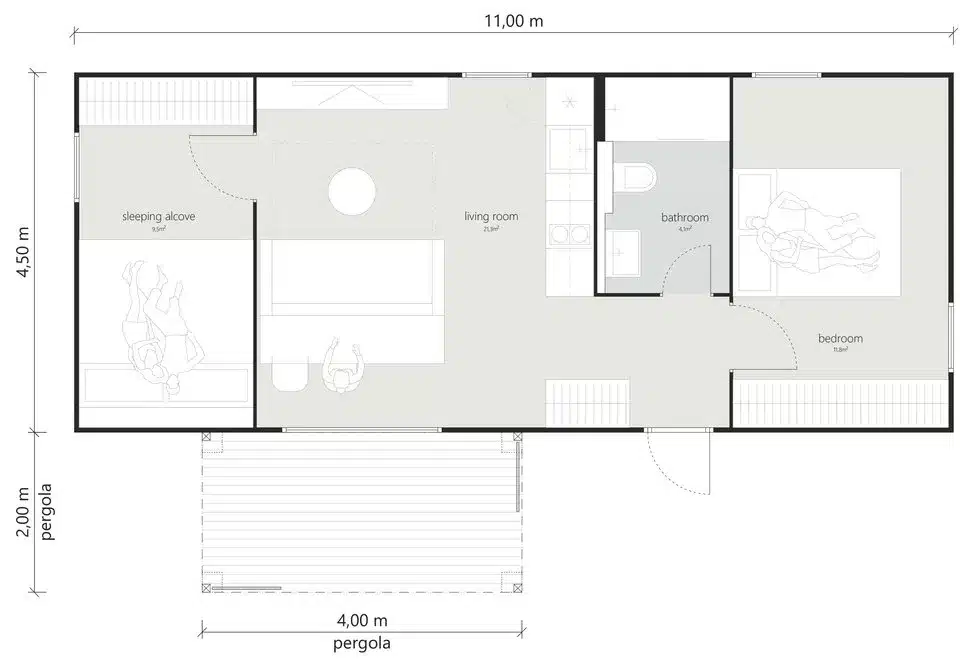
Varianta M má téměř 35 m² vnitřního prostoru a vhodné délky stěn pro chytré členění interiéru. Víkendový domeček si tak můžete rozdělit například na vstupní, denní a noční část.
Mobilní domek M charakterizuje:
Zobrazený půdorys slouží pouze pro představu o dispozičním řešení a možném vybavení domku.

Systém našich mobilních domků je navržen tak, aby umožňoval velmi jednoduše zrealizovat prostor vhodný pro víkendové nebo prázdninové bydlení – ať už chatu nebo zahradní chatku s možností příležitostného přespání.
* Vnitřní příčky a interiérové dveře nejsou součástí cenové nabídky.

Písmeno L v označení této varianty mobilního domku vystihuje nejen jeho velikost, ale také tvar. Takový půdorys lze prakticky rozdělit na více částí interiéru a na terase budete mít více soukromí.
Mobilní domek L charakterizuje:
Zobrazený půdorys slouží pouze pro představu o dispozičním řešení a možném vybavení domku.


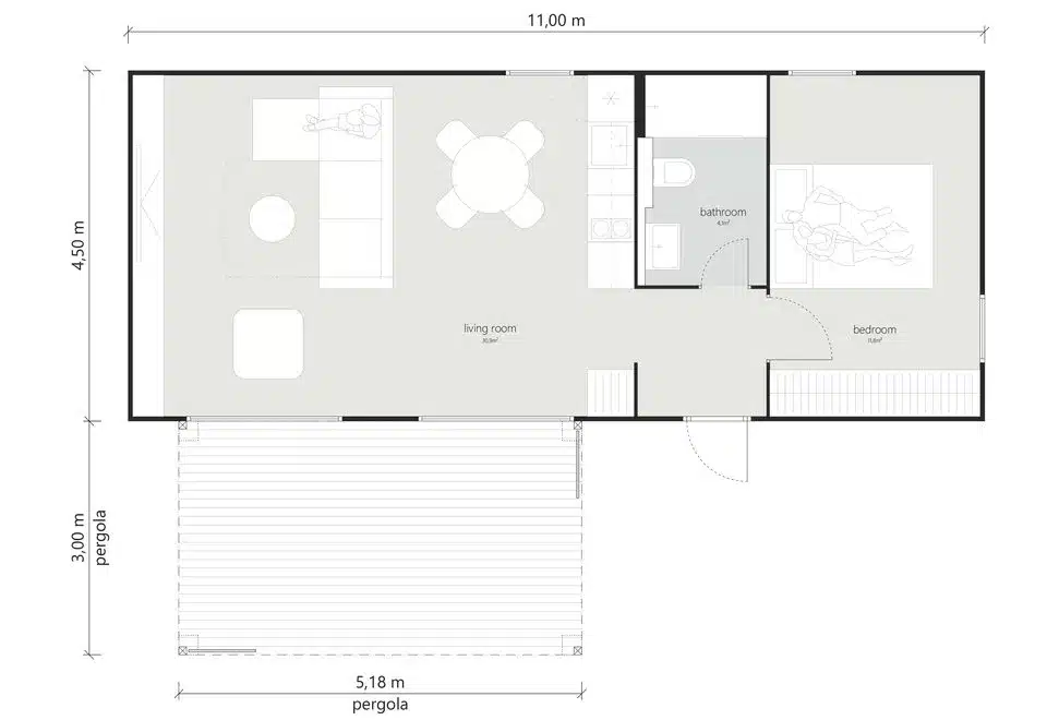
I náš víkendový domeček ve velikosti XL se vejde do zákonem stanoveného limitu, při kterém nepotřebujete stavební povolení. Na výběr jsou dvě varianty, které se liší velikostí pergoly.
Mobilní domek XL-A charakterizuje:

Stěny i střechu našich mobilních domků tvoří plošné panely s hotovou povrchovou úpravou (omítkou nebo nátěrem) a integrovanou tepelnou izolací. Jejich opláštění je z pozinkovaného ocelového plechu a izolační jádro z polyizokyanurátové (PIR) pěny.
Stěnové panely o tloušťce 60 mm
Zvětšení tloušťky ze 40 mm na 60 mm přináší výrazně lepší tepelně-izolační vlastnosti při minimálním nárůstu hmotnosti. Jedná se o nejefektivnější krok k energeticky úsporné stavbě.
Porovnání s zdivem z pórobetonu (tl. 350 mm):
Střešní panely o tloušťce 60 mm
Sendvičový střešní panel s trapézovou profilací a jádrem z PIR pěny spojuje v jednom celku nosnou vrstvu, tepelnou izolaci, hydroizolaci a krytinu.
Klíčové vlastnosti:
Střešní panely o tloušťce 102 mm
Sendvičový střešní panel s trapézovou profilací a jádrem z PIR pěny spojuje v jednom celku nosnou vrstvu, tepelnou izolaci, hydroizolaci a krytinu.
Klíčové vlastnosti:
Volitelná varianta – střešní panely QuadCore®

Nejvíce místa v interiéru a největší terasu chráněnou pergolou má náš nejluxusnější Tiny House s označením XL-B. Vejde se do něj vše, co potřebujete pro opravdu komfortní prázdninové bydlení.
Mobilní domek XL-B charakterizuje:
Zobrazený půdorys slouží pouze pro představu o dispozičním řešení a možném vybavení domku.

Nemůžete se rozhodnout? Napište nám na email info@gardeon.cz nebo zavolejte na naši infolinku +420 210 012 222 a my vám rádi poradíme s výběrem.